D400
About this space
A fantastic opportunity to occupy four bright lab units, with proximity to site amenities at Wilton Centre.
Set on the 4th floor, with a goods lift close by, and easy access to shared meeting rooms, the gym and restaurant.
Lab unit specifications:
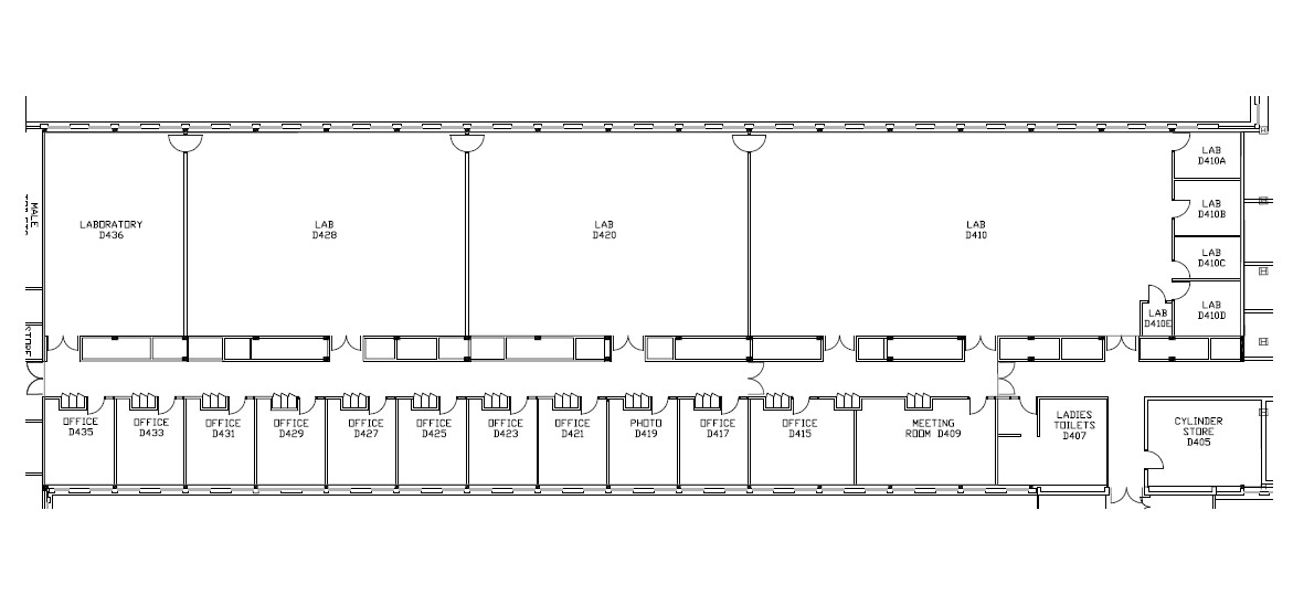
Lab – D434
· Laboratory benches with under bench moveable cupboards and
drawers
· Benches supplied with water, compressed air and nitrogen gases
· Benches have power sockets
· 1 x sink
· 1 single sash fume cupboard with water, power sockets, compressed air and nitrogen gases
Lab – D420
· Laboratory benches with under bench moveable cupboards and
drawers
· Benches supplied with water, compressed air and nitrogen gases
· Benches have power sockets
· 2 sinks
· 5 x fume cupboards with water, power sockets, compressed air and nitrogen gases – 1 top and bottom opening sash, 4 x single sash
Lab – D428
· Laboratory benches with under bench moveable cupboards and
drawers
· Benches supplied with water, compressed air and nitrogen gases
· Benches have power sockets
· 2 x sinks
· 5 x fume cupboards with water, power sockets, compressed air and nitrogen gases – 2 top and bottom opening sash, 3 x single sash
Lab – D410
· Laboratory benches with under bench moveable cupboards and
drawers
· Benches supplied with water, compressed air and nitrogen gases
· Benches have power sockets
· 2 x sinks
· 2 x fume cupboards with water, power sockets, compressed air and nitrogen gases – 1 top and bottom opening sash, 4 x single sash
· 5 annexe rooms
View brochure here
About Pioneer Group
Not the typical landlord.
“To put it simply, Pioneer Group stacks the odds in your favour. With introductions, how-to resources, connections to investors and experts, they helped my business launch and scale.”
Benefit from becoming a tenant of a Pioneer Group location, joining our life sciences community across twelve UK & Ireland sites. Behind every door someone is making something happen, something that has the potential to revolutionise the way we live. Our team at Pioneer Group, work tirelessly for the life science and technology companies who call us home and the industry we are proud to be a part of.
Pioneer Group community benefits include;
- Opportunities to connect with our huge network of life sciences businesses
- Scale-up and Accelerator programmes
- Funding & investment opportunities
- Access to our Expert Network
- Lab, Office
- 7,942 sq. ft
Each location is unique, find out about the services and amenities at this location
Amenities
- Café – The Kitchen
- Bike storage
- Gym
- On-site parking
- High speed internet
- Unique common areas
- Exhibition space
- Shared lab facilities
- Electric car charging points
- Lecture theatre
- Meeting rooms
- Good transport links
- Cleaning services
- Post and parcel services
- Showers & hair dryers
- Fully accessible
- Shared outdoor spaces
- Lakeside area
More spaces at this location

Lab With Fume Cupboards
More details >

Open Plan Ground Floor Lab R125
More details >

